ORGANIC MODERN MOUNTAIN

A HARMONIOUS BLEND OF MODERN DESIGN & NATURAL ELEMENTS.

FEATURING OVERSIZED STEEL WINDOWS SHOWCASING PICTURESQUE VIEWS, WHILE ORGANIC TEXTURES & A NEUTRAL COLOR PALETTE FURTHER CONNECT THIS HOME WITH THE SERENE ENVIRONMENT.

THE ULTIMATE SPACE FOR GATHERING WITH EXTENDED FAMILY & FRIENDS.

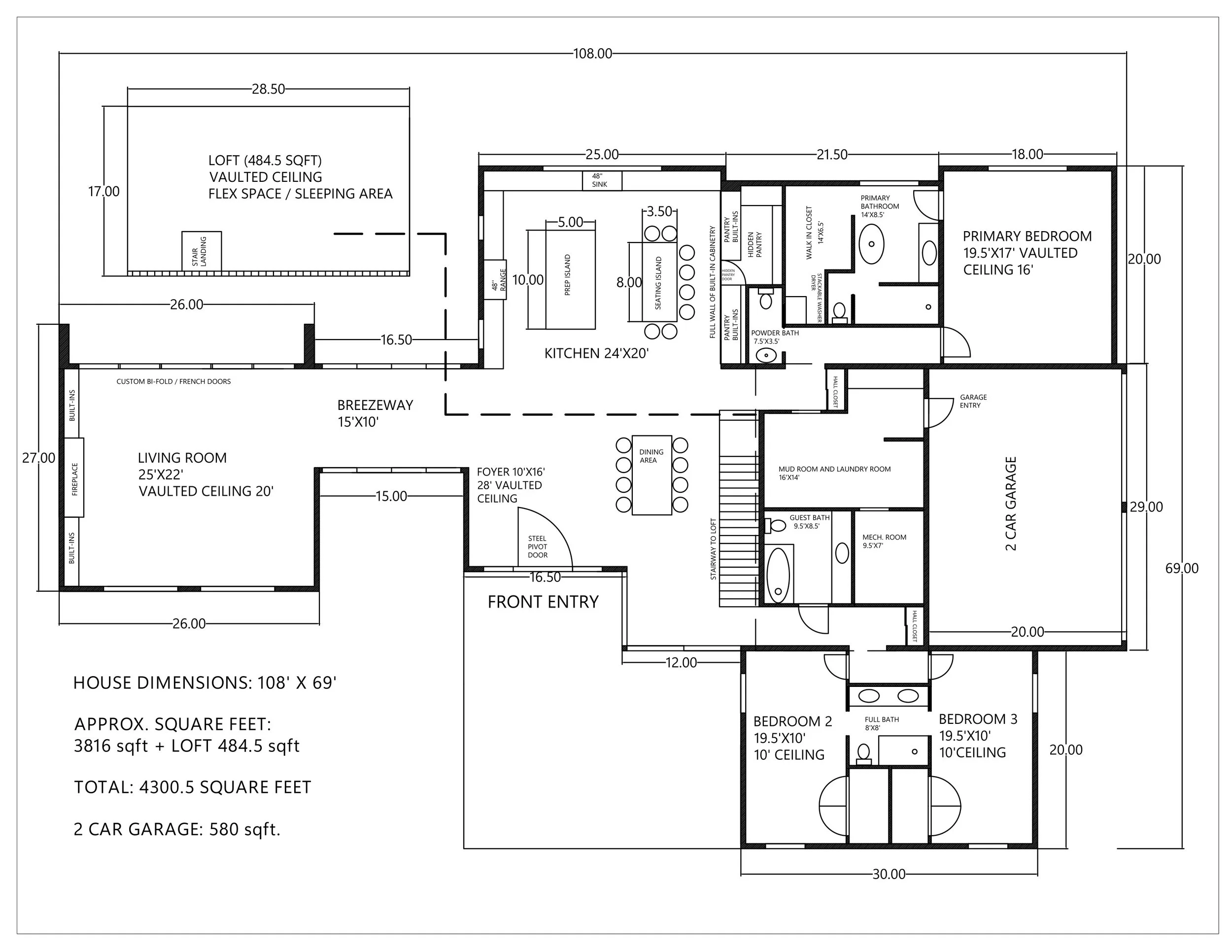
HIGHLIGHTED FEATURES: ROUGLY 4000 SQUARE FEET ONE STORY LIVING SPACE WITH GRAND ENTRY/FOYER, VAULTED CEILINGS, MODERN BREEZEWAY WITH FLOOR TO CEILING WINDOWS, SPACIOUS KITCHEN WITH 2 ISLANDS & A HIDDEN WALK-IN PANTRY, LARGE PATIO SPACE OFF OF LIVING ROOM, ATTACHED 2 CAR GARAGE LEADING INTO THE MUDROOM.

RANGER HOME NW

HOUSE FOOTPRINT: 108’ X 69’

SQUARE FOOTAGE: 3816 + LOFT (484.5)

STORIES: 1 FLOOR (PRIMARY LIVING SPACE ON MAIN FLOOR WITH STAIRWAY TO LOFT)

FLOOR PLAN STYLE: OPEN CONCEPT

BEDROOMS: 3 (LOFT ADDS ADDTIONAL SLEEPING SPACE/BUNK ROOM)

BATHROOMS: 3.5

GARAGE: 2 CAR ATTACHED (580 SQ FEET)

LIVING ROOM CEILING: 20’ VAULT

PRIMARY BEDROOM CEILING: 17’ VAULT

PURCHASE HERE